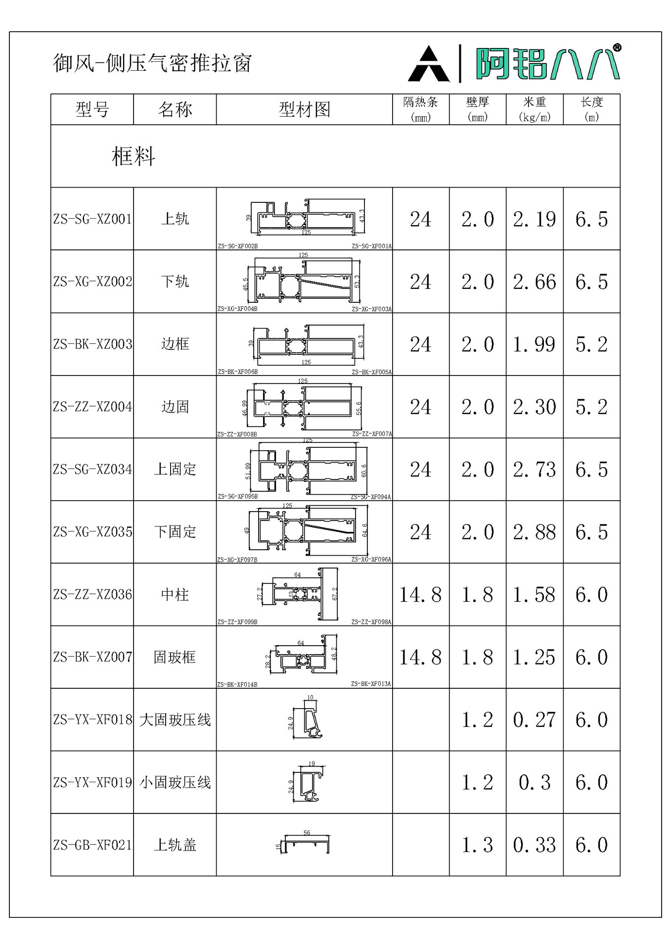
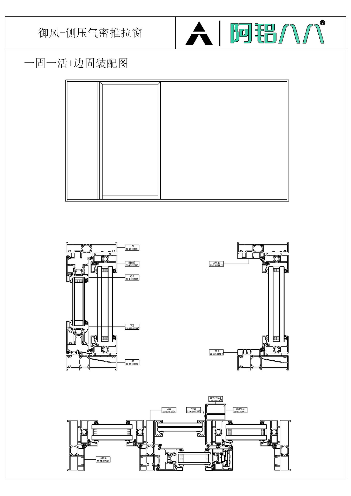
Side-pressure airtight sliding window
Verwandt: 128 sechsspuriges elektrisches Schiebefenster , Perfektes elektrisches System , Lixiang – Perfektes System , Wujie-110 sechsspuriges SchiebefensterYufeng – Seitendruck, luftdichtes Schiebefenster







来源:Side-pressure airtight sliding window
作者:Side-pressure airtight sliding
文章版权声明:除非注明,否则均为本站原创,转载或复制请以超链接形式并注明出处。

